Котел КВм 3.5 с ЗП РПК в Аягозе

Котел 3.5 МВт с топкой ЗП РПК
Котел 3.5 МВт с ЗП РПК
Чертеж котла КВм 3.5 с ЗП РПК
Котел КВм 3.5 с ЗП РПК чертеж
Твердотопливный котел 3.5 МВт с топкой ЗП РПК
Твердотопливный котел 3.5 с ЗП РПК
Водогрейный котел 3.5 с топкой ЗП РПК
Водогрейный котел 3.5 МВт с ЗП РПК
Промышленный котел 3.5 с топкой ЗП РПК
Промышленный котел 3.5 МВт с ЗП РПК
Топка котла КВм с ЗП РПК
Топка ЗП РПК
Изготовление котла 3.5 МВт с топкой ЗП РПК
Изготовление котла 3.5 МВт с ЗП РПК
Котел 3.5 МВт с топкой ЗП РПК
Чертеж котла КВм 3.5 с ЗП РПК
Твердотопливный котел 3.5 МВт с топкой ЗП РПК
Водогрейный котел 3.5 с топкой ЗП РПК
Промышленный котел 3.5 с топкой ЗП РПК
Топка котла КВм с ЗП РПК
Изготовление котла 3.5 МВт с топкой ЗП РПК
Цена
20 988 000 ₸
От 20 988 000 ₸ с доставкой до г.
  • Модель с механическим забросом топлива в топку и полуавтоматическим сбросом золы шлака при помощи поворотных опрокидывающихся колосников
  • Дутье и тяга регулируются шиберами
  • Надежная работа котла обеспечивается изготовлением трубной системы из трубы сталь 10 повышенной прочности

Технические характеристики котла КВм 3.5 с ЗП РПК

МаркаКотел КВм 3.5 с ЗП РПК
ВидВодогрейный
Тип отопительного котлаТвердотопливный
БрендHEATEXPERT
ТипКотел КВм
Вид топкиМеханическая, ЗП РПК
Максимальная тепловая мощность3.5 МВт
Максимальная тепловая мощность3500 кВт
Максимальная тепловая мощность3.01 Гкал
Диапазон регулирования мощности50-100 %
ТопливоТвердое, Уголь
Низшая теплота сгорания проектного топлива5230 кКал/кг
КПД котла на УГЛЕ, не менее80 %
Расход УГЛЯ среднечасовой за отопительный сезон401 кг/ч
Расход УГЛЯ при максимальной нагрузке котла702 кг/ч
Расход условного топлива524 кг/ч
Минимальная температура воды на входе в котел55 °С
Максимальная температура воды на выходе из котла115 °С
Давление воды, не более0.3-0.6 (3-6) МПа (кгс/см²)
Номинальный расход теплоносителя120 м³/ч
Расход теплоносителя через котел min-max90-150 м³/ч
Гидравлическое сопротивление при номинальном расходене более 0.07 (0.7) МПа (кгс/см²)
Аэродинамическое сопротивление300 (30) Па (мм. вод. ст.)
Разряжение в топочной камере20-40 (2-4) Па (мм. вод. ст.)
Объем уходящих газов15050 м³/ч
Температура уходящих газов220 °С
ТягаУравновешенная
Водяной объем котла2290 л
Объем топочной камеры13.1 м³
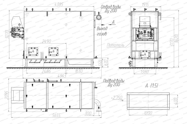
Размер топочной камеры, длина*ширина*высота3515х1380х2700 мм
Активная площадь решетки горения4.85 м²
Присоединительные размеры по водяному тракту200 Ду
Присоединительные размеры газохода уходящих газов, ширина*высота / сечение1200х400 / 0.48 мм/м²
Габаритные размеры блока, длина*ширина*высота5875х2235х3005 мм
Габаритные размеры установки, длина*ширина*высота6755х2235х3620
Масса11000 кг
Конструкция котлаВодотрубная
Количество контуровОдноконтурный
РазмещениеНапольный
Тип камеры сгоранияОткрытый
УправлениеЭлектронное
Принцип работы твердотопливного котлаКлассический
ЭнергонезависимыйНет
Тип питанияТрехфазное
Встроенный циркуляционный насосНет
Встроенный расширительный бакНет
ЭнергоэффективностьВысокая
Отапливаемая площадьот 20900 до 27400 м²
Отапливаемый объемот 62600 до 82000 м³

Промышленный котел КВм 3.5 с ЗП РПК в Аягозе

Водогрейный котел с топкой ЗП РПК мощностью 3.5 МВт работает на каменном и буром угле, используется для отопления и горячего водоснабжения жилых и административных зданий, промышленных помещений, производственных предприятий. Температура нагрева воды 115 °С, рабочее давление 0,3-0,6 МПа. Котел предназначен для работы в механизированных котельных, оборудованных системами топливоподачи и золошлакоудаления.

Устройство котла КВм 3.5 МВт с забрасывателем

Механический котел 3,5 МВт с ЗП РПК напольный, водотрубный, гладкотрубный, горизонтальный состоит из котельного блока и топки.

Топка ЗП РПК - это топка с механическим забрасывателем топлива. Забрасыватель крепится на чугунную плиту фронтальной части котла. Поворотные колосники укладываются в топку. В зависимости от устройства канала золошлакоудаления колосники устанавливаются в передней либо задней части котла.

Топка выполняется в газоплотном исполнении, что исключает присосы холодного воздуха в топочное пространство.

Конструкция конвективной части водотрубного отопительного котла 3.5 МВт с ЗП РПК имеет обширную нагревательную поверхность. Конвективные пакеты состоят из труб расположенных в шахматном порядке. Такое расположение позволяет лучше омывать трубы дымовыми газами. Горячие дымовые газы охлаждаются при этом до 200-180 °С.

Водотрубный нагревательный котел 3 5 МВт с топкой ЗП РПК изготавливается со съемной, облегченной теплоизоляцией из плит ПТЭ. Обшивка производится из стальных листов.

Гидравлическая схема котла

Движение воды с высокой скоростью создает высокую турбулентность водного потока, что предотвращает отложение солей и образование накипи. Перегородки, которыми в большом количестве снабжены коллекторы котла, распределяют потоки воды, не допуская возникновения застойных участков и локальных перегревов.

Принцип работы котла КВм 3.5 с ЗП РПК

Промышленный механический котел 3,5 ЗП РПК устанавливается в механизированных котельных, оборудованных конвейерами топливоподачи и золошлакоудаления. Топливо подается в бункер забрасывателя транспортером. Забрасыватель равномерно распределяет топливо по всей колосниковой решетке РПК, где происходит его горение. Продукты сгорания топлива сбрасываются при помощи поворотных колосников в канал золошлакоудаления. Управление колосниками производится вручную рычагом. Шлак и зола удаляются в канал золоудаления и транспортируются в отвал.

Нагрузка топки регулируется изменением подачи топлива забрасывателем, а также изменением количества подаваемого воздуха.

Комплект поставки

Цена на промышленный котел 3.5 МВт с топкой ЗП РПК включает базовую комплектацию. В состав базовой комплектации входит: котельный блок, топка, вентилятор поддува, забрасыватель, затворы, предохранительные клапаны, вентили, манометры, термометры, трехходовые краны.

Дополнительная комплектация

  • автоматика – обеспечивает управление и безопасность котла;
  • дымосос – создает разряжение в котле и исключает попадание дыма в помещение;
  • золоуловитель – применяется для улавливания золы из дымовых газов;
  • циркуляционный насос - обеспечивает циркуляцию воды в котлоагрегате;
  • подпиточный насос – позволяет пополнять объем теплоносителя в контуре.

Купить котел КВм 3.5 с ЗП РПК

Для того чтобы купить котел КВм 3.5 с ЗП РПК в Аягозе вы можете сделать заявку по телефону +7-7172-69-59-73, либо оформить заявку онлайн. Менеджеры дадут консультацию по подбору вспомогательного оборудования для выбранных вами моделей и рассчитают стоимость доставки. Транспортирование котлоагрегата и вспомогательного оборудования до объекта осуществляется автомобильным транспортом.

Комплект поставки котла КВм 3.5 с ЗП РПК

ЗП РПК топка
Топка ЗП-РПК-1-1100 2135
1 штука
Забрасыватель топлива
Забрасыватель ЗП 600
1 штука
Вентилятор
Вентилятор 4 с дв. 7,5/1500
1 штука
Затвор Ду 200
Затвор Ду 200
2 штуки
Клапан предохранительный Ду 80
Клапан Ду 80
1 штука
Клапан обратный
Клапан обратный
1 штука
Манометр МП 160
Манометр МП 160
2 штуки
Кран трехходовой ДУ 15
Кран Ду 15
2 штуки
Термометр ТТЖО
Термометр ТТЖО
2 штуки
Оправа термометра ОПТ
Оправа ОПТ
2 штуки
Вентиль Ду 20
Вентиль Ду 20
9 штук
Вентиль Ду 25
Вентиль Ду 25
7 штук

Вспомогательное оборудование для работы котла КВм 3.5 с ЗП РПК

Автоматика механической топки ТШПМ
Цена 1 774 440 тг.
Дымосос ДН 9
Цена 1 471 704 тг.
Циклон ЦН 15 700 4УП
Цена 2 696 640 тг.
Дымосос ДН 10
Цена 2 042 196 тг.
Подъемник скиповый 100
Цена 4 960 800 тг.
Нет фото
Цена по запросу
Транспортер золоудаления
Цена 7 314 000 тг.
ДО-1М дробилка
Цена по запросу
Дымовые трубы
Цена по запросу
Насос К консольный
К 125-100-200а
Цена по запросу
Насос К консольный
К 65-50-160а
Цена 388 596 тг.
Насос TD
Насос TD100-40G2 (18,5 кВт)
Цена 2 154 132 тг.
Насос CHL
Насос CHL15-30 (3 кВт)
Цена 693 240 тг.

Аналоги котла КВм 3.5 с ЗП РПК

Котел КВм-3.5 с ТЛПХ
Котел КВм 3.5 с ТЛПХ
Вид топкиМеханическая, ТЛПХ
Максимальная тепловая мощность, МВт3.5
ТопливоТвердое, Уголь
Отапливаемая площадь, м²от 29300 до 38400
Цена 49 906 920 тг.
Котел 3.0 МВт с топкой ЗП РПК
Котел КВм 3.0 с ЗП РПК
Вид топкиМеханическая, ЗП РПК
Максимальная тепловая мощность, МВт3
ТопливоТвердое, Уголь
Отапливаемая площадь, м²от 18400 до 24100
Цена 18 444 000 тг.
Котел 4.0 МВт с топкой ЗП РПК
Котел КВм 4.0 с ЗП РПК
Вид топкиМеханическая, ЗП РПК
Максимальная тепловая мощность, МВт4
ТопливоТвердое, Уголь
Отапливаемая площадь, м²от 25000 до 32900
Цена 22 896 000 тг.

Сертификат и качество котла КВм 3.5 с ЗП РПК

Сертификат на водогрейные котлы на твердом и жидком топливе
Сертификат на водогрейные котлы на твердом топливе

Собственное производство

Котельный завод производит
  • Паровые котлы от 300 кг до 2.5 тонны пара в час
  • Промышленные водогрейные котлы от 150 КВт до 4 МВт на всех видах топлива
  • Механические топки ТШПМ, шурующая планка и ТЛПХ, ленточное полотно прямого хода
  • Циклоны для очистки воздуха и дымовых газов для производств и промышленных отраслей
  • Транспортеры и системы топливоподачи и шлакоудаления
Подробнее о производстве
Собственное производство
Смотреть видео
с производства